a empresa
marquÊs
Nossa história nasce a partir da atuação prática no desenvolvimento de projetos de engenharia civil, com o objetivo de oferecer soluções técnicas claras, eficientes e alinhadas à realidade da obra.
Desde o início, o foco sempre foi a elaboração de projetos bem definidos, capazes de facilitar a execução, reduzir retrabalhos e garantir segurança estrutural e funcional. Ao longo desse percurso, a experiência adquirida em diferentes tipos de projetos permitiu ampliar a atuação para soluções arquitetônicas, estruturais e complementares, atendendo obras de pequeno, médio e maior porte.
A evolução do escritório acompanha a necessidade do mercado por projetos mais compatibilizados, organizados e tecnicamente consistentes, desenvolvidos conforme as normas técnicas e legislação vigente. Cada novo projeto representa um compromisso com a qualidade técnica, a responsabilidade e a busca por soluções que agreguem valor real à obra.
Hoje, seguimos com a mesma premissa que deu origem ao nosso trabalho: transformar ideias em projetos executáveis, oferecendo clareza, segurança e previsibilidade para quem constrói.


o que nos fazemos ?
Projetos de Engenharia Civil com Precisão Técnica e Segurança
Desenvolvimento de projetos estruturais, arquitetônicos e complementares para obras residenciais, comerciais e institucionais.
Projetos engenharia civil e arquitetonicos
Nossos ultimos projetos
Prezamos a segurança, economia e praticidade ao auxiliarmos a execução com nossos projetos de engenharia civil e tambem construimos plantas arquitetonicas com aprovação na prefeitura , renders e designer de interiores.

arquitetonico
Planejamento funcional e otimizado

ESTRUTURAL
Segurança e precisão estrutural

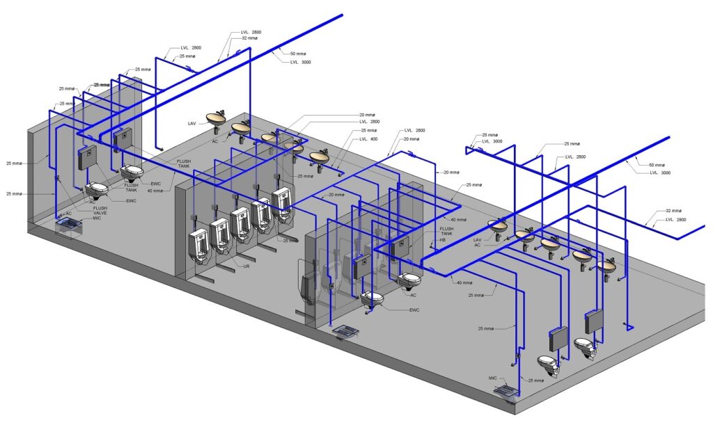
HIDRAULICA
Soluções eficientes e normatizadas

hidrossanitario
Dimensionamento seguro e funcional

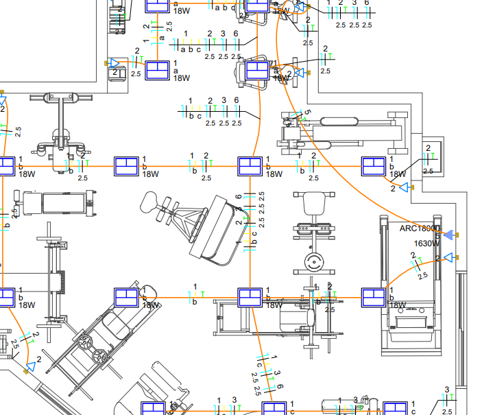
eletrico
Projetos seguros e compatibilizados

rENDER E DESIGNER DE INTERIORES
Visualização realista e estratégica
